Mi Casita Preschool
The topics are interesting and engaging to the students which keeps them enthusiastic and genuinely excited about a. Mi Casita is a Spanish Immersion preschool meaning that teaching and interaction is conducted entirely in Spanish.
  Gallery Of Mi Casita Preschool And Cultural Center Barker Associates Architecture Office 4mativ Design Studio 9  
Mi Casita daycare and preschool WeeCare is a home daycare that cultivates curiosity creativity and learning in a secure and safe space for your little one.

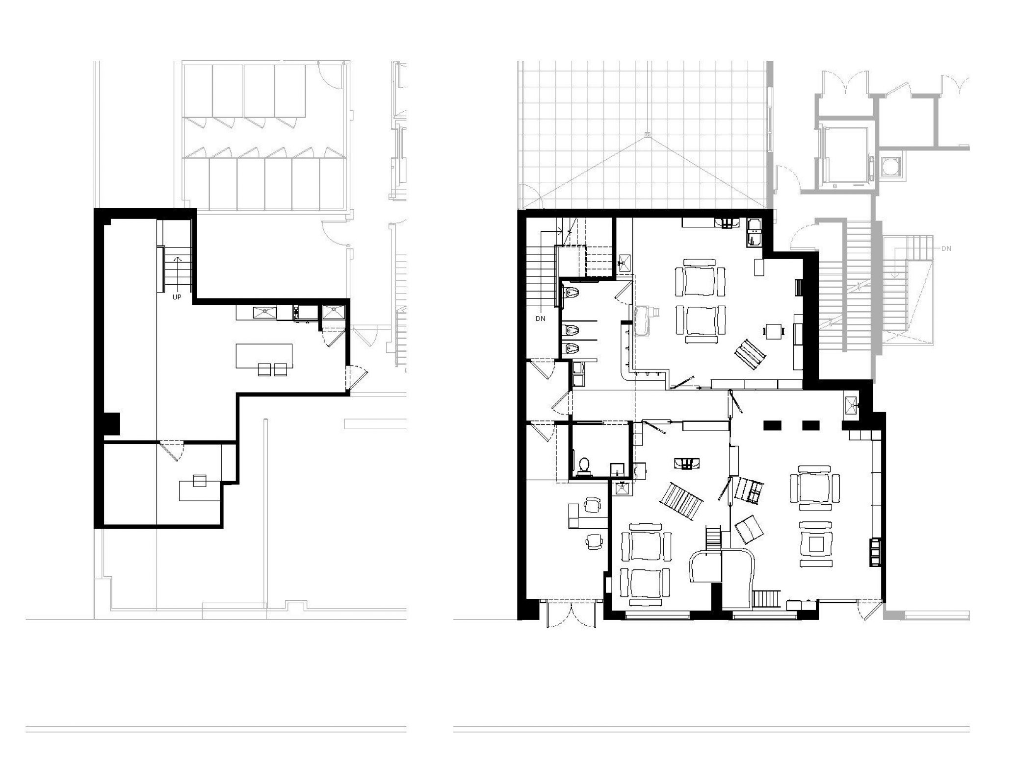
Mi casita preschool. Our programs are built to empower children to grow into awesome community members at their own speed with focus on what makes them truly come alive. This essential design consideration extends from tile patterns and surfaces to vantage points based on a childs height. Barker Associates Architecture Office and 4Mativ Design Studio collaboratively designed Mi Casita Preschool and Cultural Center located in a new mixed-use development in New York City New York.
Mi Casita preschool is based on the concept of Authentic Learning. She has worked as a teacher researcher and policy advisor. My daughter has been there for a little over a year and she is simply flourishing both academically and socially.
Preschool Ages All children must be at least 2 years old 24 months by the first day of school. As a preschool Mi Casita fits the proportions of a small child to encourage exploration and curiosity. For example orders placed between September 17th and October 16th will receive the November Tu Casita Box as their first delivery.
Mi Casita was incorporated in 1971 as the first Hispanic bi-lingual bi-cultural childcare center licensed in the State of New Jersey. Orders placed between October 17th and. They truly care about the children and it shows everyday.
Mi Casita is a Spanish bilingual arts-based preschool and cultural arts center in Bedford Stuyvesant Brooklyn New York. Eva Ruiz Director. Mi Casita East is currently open from 700 am to 300 pm.
The fastest and most effective way to achieve fluency in a language is through immersion which provides students with full Spanish language. The program called for three classrooms to occupy a large space with 15 ceilings on the ground floor of the building with a lower level for support programming. 7 reviews of Mi Casita Preschool We cannot say enough good things about Mi Casita.
For your convenience and safety we have a driveway for parking and a gated entrance. Mi Casita Preschool and Cultural Center designed collaboratively by Barker Associates Architecture Office and 4Mativ Design Studio is located in a new mixed-use development in Brooklyn. Mi Casita is a boutique child care program preschool in Clevelands Ohio City neighborhood delivering a literacy-enriched cultural learning experience in a nurturing environment.
Eva is the Founder and Director of Mi Casita and a lifelong educator. We also have a backyard an art area and a reading area to promote a comfortable atmosphere where. Explore fun online activities for preschoolers covering math ELA science more.
Read more about our approach and our programs to learn why Mi Casita is a great choice for your childs early education. The teachers and staff are wonderful and always seem to be happy and energetic. Orders placed by the 16th of each month will receive a Tu Casita box for the following month.
Eva has been a teacher in the US and internationally in San Francisco Barcelona Washington DC Dakar and New York. Once you have toured and express an interest in continuing with your application you will receive an invoice in the amount of 60 from Brightwheel. Mi Casita Preschool and Cultural Center is located in a new mixed-use development in Brooklyn.
This provides an environment where young children acquire the language very quickly. Explore fun online activities for preschoolers covering math ELA science more. We have available spaces for 3 and 4 year olds for In Person and Virtual instruction.
Through authentic cultural expereiences activities crafts reading games and more Mi Casita educates our students through fun and engaging activities. In short authentic learning is real life learning. It was worth understanding a kids visual access and realizing that they have a different viewpoint says Barker.
The program called for three classrooms to occupy a large space with 15 ceilings on the ground floor of the building with a lower level for support programming. So on behalf of Mi Casita bienvenidos. Any orders placed after the 16th will receive the subsequent box.
Mi Casita is a bilingual arts-based preschool and cultural arts center in Bedford Stuyvesant for bilingual families and for those who want to acquire a second language. Once your application is received you will be sent an invitation to tour. Our children begin a positive school experience as they learn socialization skills enhance emotional development and learn through play.
An authentic learning experience is a multifaceted interdisciplinary investigation of a real world topic.
  Mi Casita Preschool And Cultural Center  
  Gallery Of Mi Casita Preschool And Cultural Center Barker Associates Architecture Office 4mativ Design Studio 2  
  Mi Casita Preschool Spanish Immersion Preschool In Philadelphia Pa And Fort Worth Tx  
  Mi Casita Preschool And Cultural Center Baao 4mativ Design Studio Arch2o Com  
  Mi Casita Preschool And Cultural Center Picture Gallery Architecture Office Nursery Interior Design Cultural Center  
  Mi Casita Preschool And Cultural Center Baao 4mativ Design Studio Arch2o Com  
  Mi Casita Preschool And Cultural Center Barker Associates Architecture Office 4mativ Design Studio Archdaily  
  Mi Casita Preschool And Cultural Center Building Indonesia  
  Mi Casita Preschool Micasitaphilly Twitter  
  Mi Casita Preschool Fort Worth Woman  
  Mi Casita Preschool Philadelphia Philadelphia Pennsylvania Facebook  
  Mi Casita Preschool And Cultural Center By Baao Architects And 4 Mativ Design Studio  
  Mi Casita Preschool And Cultural Center Picture Gallery Cultural Center Architecture Office Design Studio  

Comments
Post a Comment